Summit View

The Summit View is a park model cabin built for the wild but designed to feel like home. With four unique floor plan options, the Summit View is a legend when it comes to variety. Whatever your goal is for the cabin—whether that’s a weekend residence, rental property, or full-time home—it can easily fit into one of the Summit View variations. Large windows flood the interior with natural light, and an inviting front porch creates the perfect place to slow down and take it all in. The Summit View is ready for the heavy lifting of a full-time home or the coziness of a vacation spot.
Summit View Style 1 Exterior Front View

Summit View

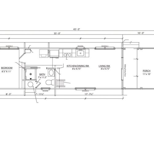
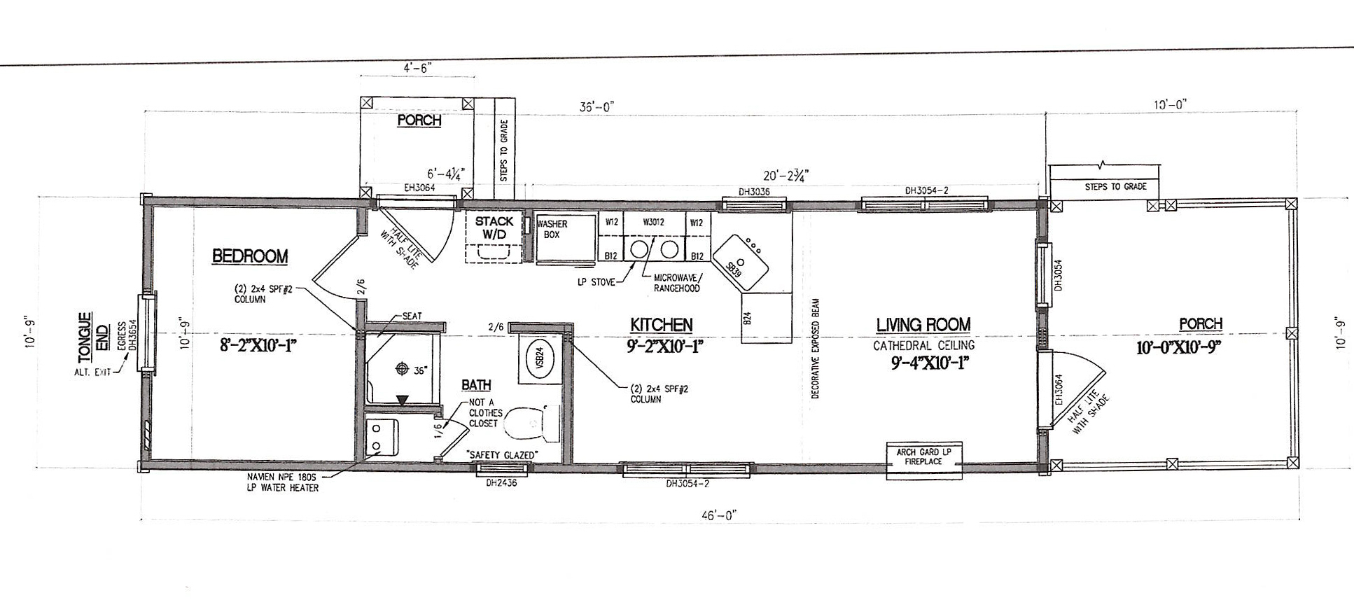
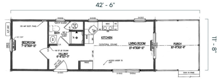
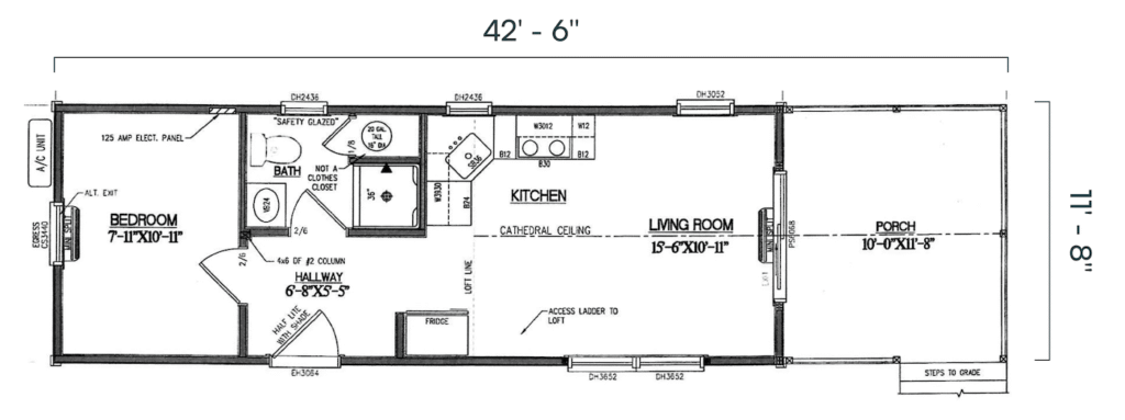
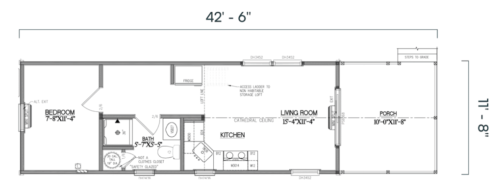
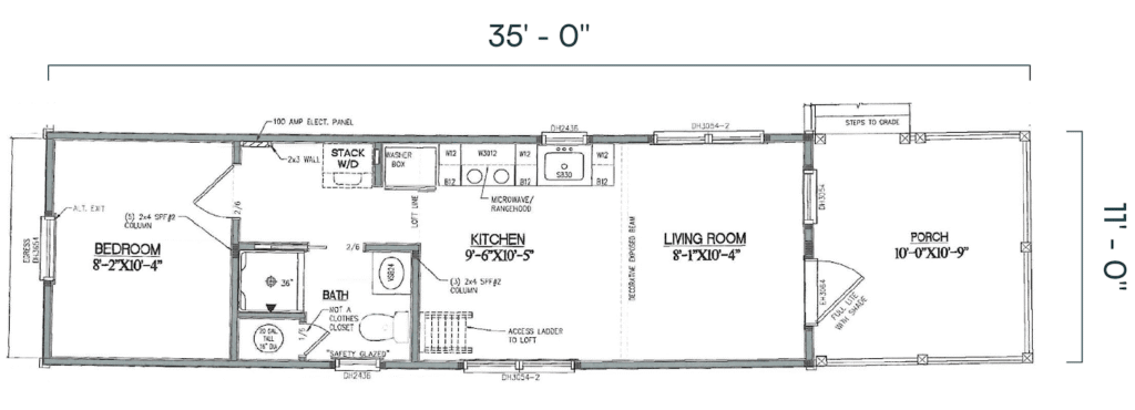
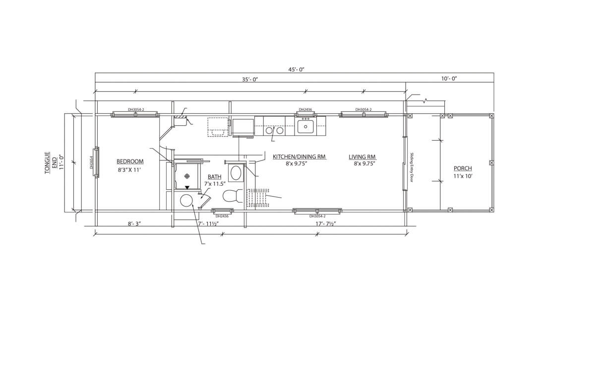
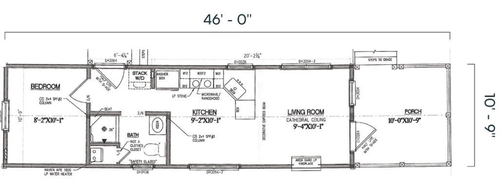
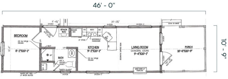
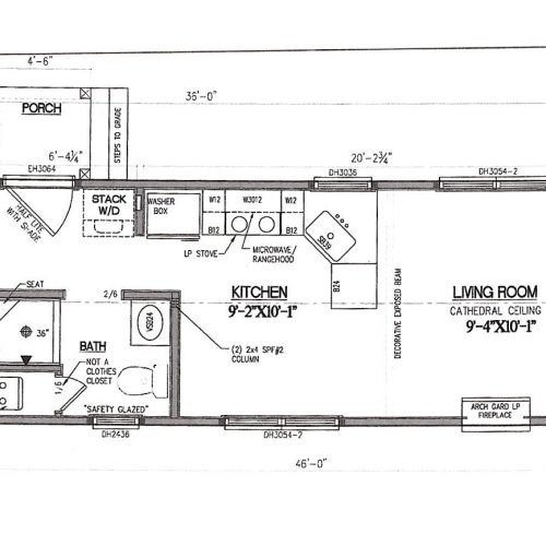
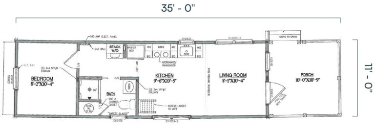
200-390 sq. ft. Living Space | 107-118 sq. ft. Porch | 99-128 sq. ft. Loft

Exterior Features

  • 2x4 walls with 1/2” OSB and housewrap
  • LP lap siding
  • 2x6 floor joist with 3/4” T&G flooring
  • Pressure-treated railing stained in your choice of color
  • Trex decking in your selected shade

Insulation

  • R-13 wall insulation
  • R-19 ceiling insulation
  • R-14 spray foam flooring insulation with rodent-proofing

Windows & Doors

  • All windows are clay with prairie grids
  • Half-lite pre-hung doors

Interior Features

  • T&G Knotty Pine interior
  • Pine trim and moldings
  • Wood-look vinyl plank flooring
  • Pine kitchen cabinets
  • Countertop: Your choice of a solid top or a Formica top
  • 24” bathroom vanity
  • 36” shower unit

Utilities & Comfort

  • Electrical package includes 100-amp service with code-compliant outlets and lighting
  • Climate Control: Optional mini-split system
  • Every Dwellity cabin can include built-in appliances like a stove, microwave, and refrigerator. Let us know what you need, and we’ll help customize the right setup for your space.

Floor Plans

Starting at $92,428

Select cabin options to receive a quote.

Summit View Styles*

  • Pick A Summit View Style *

Exterior Options*

  • Choose your siding & trim type *

  • Metal Siding Color Options *

  • Vinyl Siding Color Options *

  • *

  • Metal Trim Color Options *

  • Metal Trim Color Options *

  • LP Lap Siding Color Options *

  • Wood Trim Color Options *

  • Wood Trim Color Options *

  • Pine & Log Siding Color Options *

    Additional cost for Pine & Log Siding. Call for details.

  • Pine & Log Trim Color Options *

  • Choose your roofing type *

  • Metal Roofing Color Options *

  • Shingle Color Options *

  • Railing *

Interior Options*

  • Flooring Options *

  • Vinyl Plank Flooring *

  • Hardwood Flooring *

    Ask for price

  • Wall Color Options *

    Knotty Pine Classic Gray is + $2.45 per square foot

  • What color would you like? *

  • Door type Options *

    Pocket Door + $325 per door

  • Door Color Options *

Loft Options*

  • Cabin Loft *

  • Railing Style *

  • Storage Closet Under Steps *

Kitchen Options*

  • Cabinet Color Options *

  • Hickory Cabinet Colors *

  • Maple Cabinet Colors *

  • Countertop Options *

  • Solid Granite Countertop Colors *

  • Formica Countertop Colors *

  • Sink Options *

  • Work Station Sink *

Appliance Options*

  • Appliance finish *

  • Fuel Type *

  • 30 inch electric stove by dwellity

    Black Electric Stoves *

  • White Electric Stoves *

  • black lp stove

    Black LP/Natural Stoves *

  • White LP/Natural Stoves *

  • stainless electric stove

    Electric Stainless Stoves *

  • stove 30" stainless electric

    LP/Natural Stainless Stoves *

  • Microwave with range hood

    Black Microwave with Rangehood *

  • White Microwave with Rangehood *

  • Cedar Ridge Lodge Microwave

    Stainless Microwave with Rangehood *

  • 36" Black Rangehood *

  • 36" White Rangehood *

  • 36" Stainless Range Hood

    36" Stainless Rangehood *

  • 36" black French door refrigerator with ice maker on door

    Black French Door Refrigerator with ice maker on door *

  • White French Door Refrigerator with ice maker on door *

  • Stainless French Door Refrigerator with ice maker on door *

Bathroom Cabinet Options*

  • Vanity Color Options *

  • Rustic Hickory Vanity Colors *

  • Maple Vanity Colors *

  • Countertop Options *

  • Solid Granite Countertop Colors *

  • Formica Countertop Colors *

  • Bathroom Vanity Sink *

Shower Options*

  • 42" Swinging Shower Door Chrome

    Shower Size *

  • 30" Shower Door *

  • 36" Shower Door *

  • 42" Shower Door *

  • 60" Shower Door *

  • 60" tub shower with fiberglass walls *

Water Heaters*

  • Water Heaters *

  • 20-40 Gallon Electric Hot Water Heater *

  • 20-40 Gallon LP Hot Water Heater *

Heating & Cooling

  • Heating & Cooling *

    Mini Split - 1st zone +$4,875, Additional zones +$3,640

Desired Timeline*

  • How soon do you want your cabin? *

Product total

Options total

Grand total

Backed by Warranty

For your peace of mind, we offer material and workmanship warranties on our modular and park models.

Cedar Ridge Lodge with a Yard and Mountain Background
stacks of coins with penny bank and calculator in someones hands
.

Financing Options

Bringing your dream cabin to life may be easier than you think. Reach out today for a quote and explore financing recommendations to make your cabin a reality.

Summit View FAQ's

Dwellity Service Area

We serve every corner of the U.S. except Hawaii and Alaska. We’re here to help you create your dream cabin wherever you call home. 

We handle the design and build of your cabin with care and precision, and prepare it for delivery to your unique space. To make the process seamless, we also connect you with trusted local contractors in your area who can handle site preparation and setup. Whether you’re nestled in the mountains, lakefront, or surrounded by open fields, we can help you bring your vision to life.

dwellity service area

Reach Out to Learn More!

Contact Form